- 630 000 € *
Maison mitoyenne
BIARRITZ (64200)
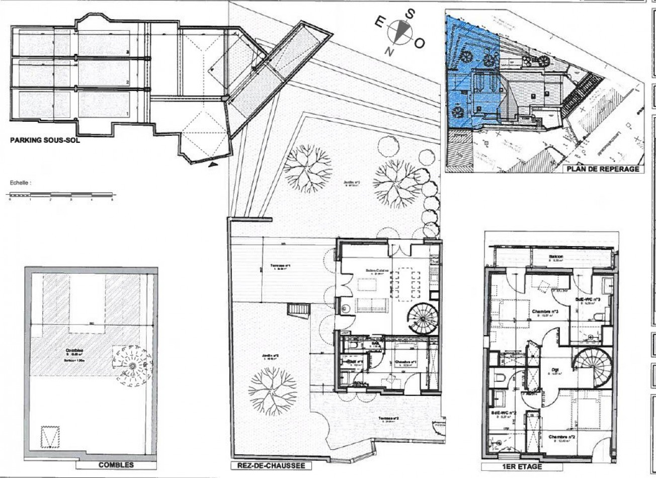
Situé dans la commune de Biarritz, dans le quartier prisé des Hauts de Saint-Charles,ce magnifique plateau en duplex d'une surface utile de 155,49 m2 (125,65 m2 loi carrez) se trouve au sein d'une résidence récente et élégante, composée de seulement trois lots. 
Livré hors d'air et hors d'eau, ce bien bénéficie d'un jardin privatif, ainsi que deux terrasses et un second jardin ainsi qu'un balcon.
En option, vous avez la possibilité d'acquérir une place de parking pour 10 000 € supplémentaires ou un garage double pour 80 000 €.
Exemple d'aménagement après travaux :
Transformez ce plateau en un T4, comprenant un salon avec cuisine ouverte et une suite parentale au rez-de-chaussée, avec des WC séparés. À l'étage, deux chambres, chacune disposant de sa propre salle d'eau et WC.
Le plateau est déjà viabilisé (installation des compteurs d'eau, d'électricité et évacuation des eaux usées). La couverture, le ravalement de façade ainsi que le double vitrage sont neufs.
Plans d'aménagement et photos disponibles sur demande.
Ne manquez pas cette opportunité exclusive avec l'agence Sélection Océan.
Bien soumis au statut juridique de la copropriété. Nb de lot :0.
* Honoraires charge vendeur.
- Surface 126 m²
- Pièce(s) 4 pièce(s)
- Chambre(s) 2 chambre(s)
- Terrain 115 m²
 
	

























 
	